This collaborative project brought together students from graphic design, interior design, and hospitality to collaborate and transform an existing structure into a boutique hotel concept. Our team of seven created Beaumont Hotel & Suites in Toronto, designed to appeal to business travelers through an engaging, educational experience. The brand draws heavily from the building’s past life as a car factory, blending history with modern hospitality.
Images from Canadian National Archives
Images from Canadian National Archives
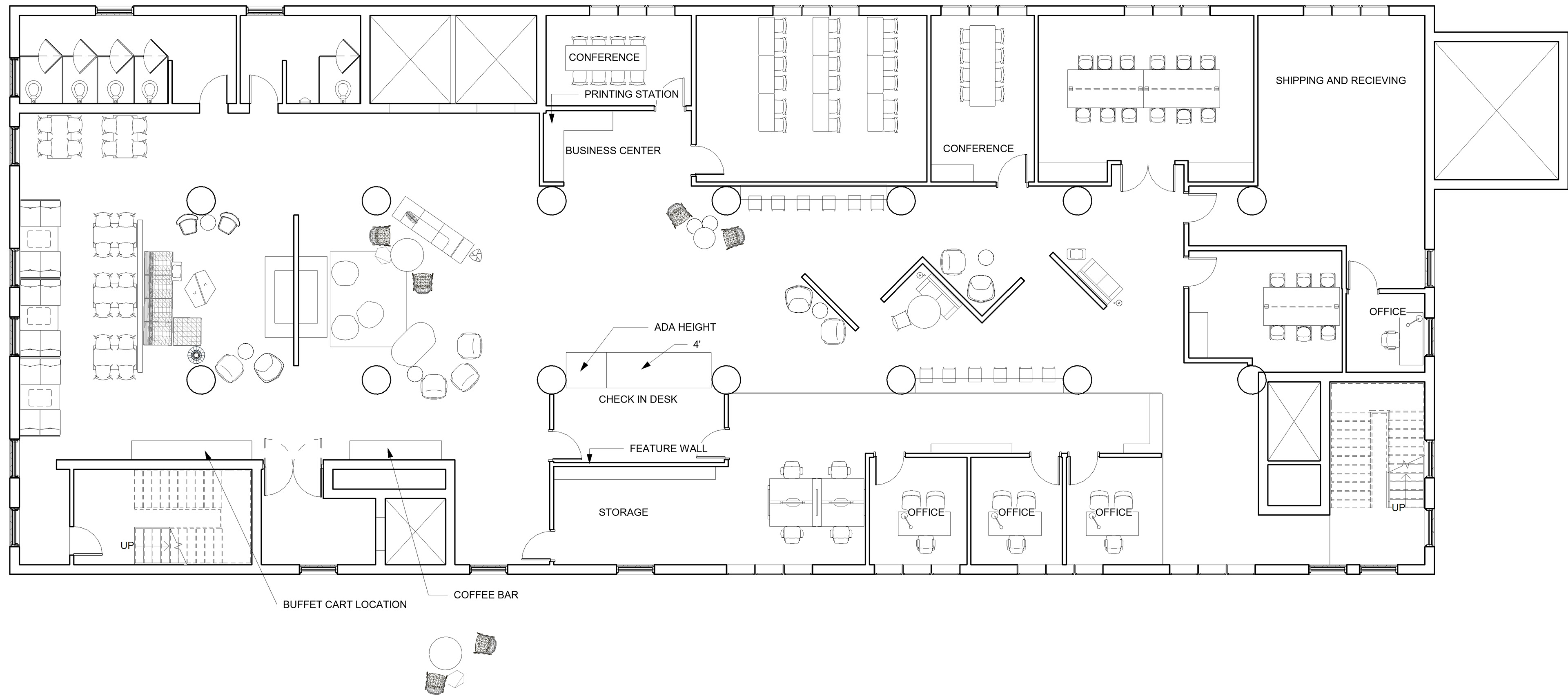
Lobby Floor Plan
Lobby Floor Plan
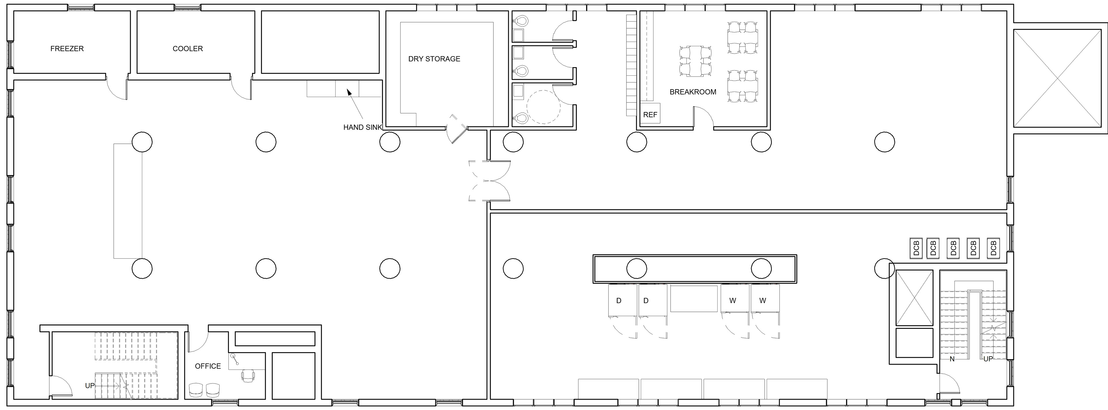
Back of House Floor Plan
Back of House Floor Plan
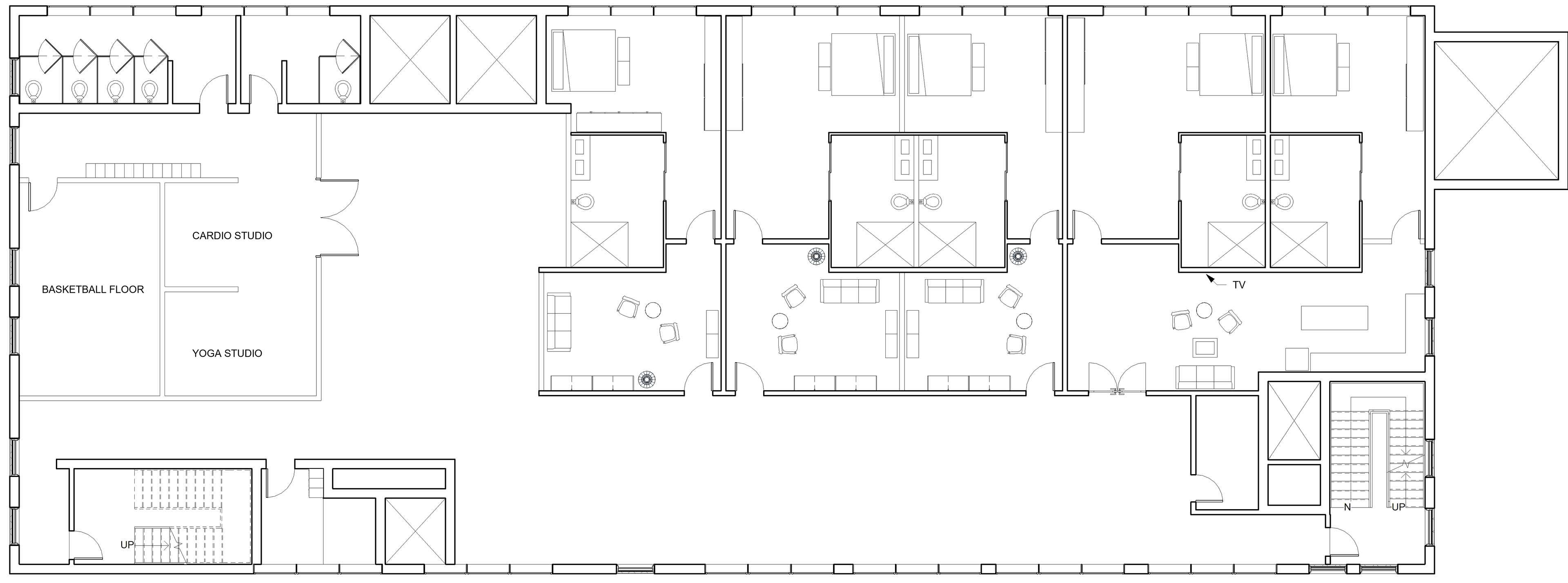
Room Floor Plan
Room Floor Plan
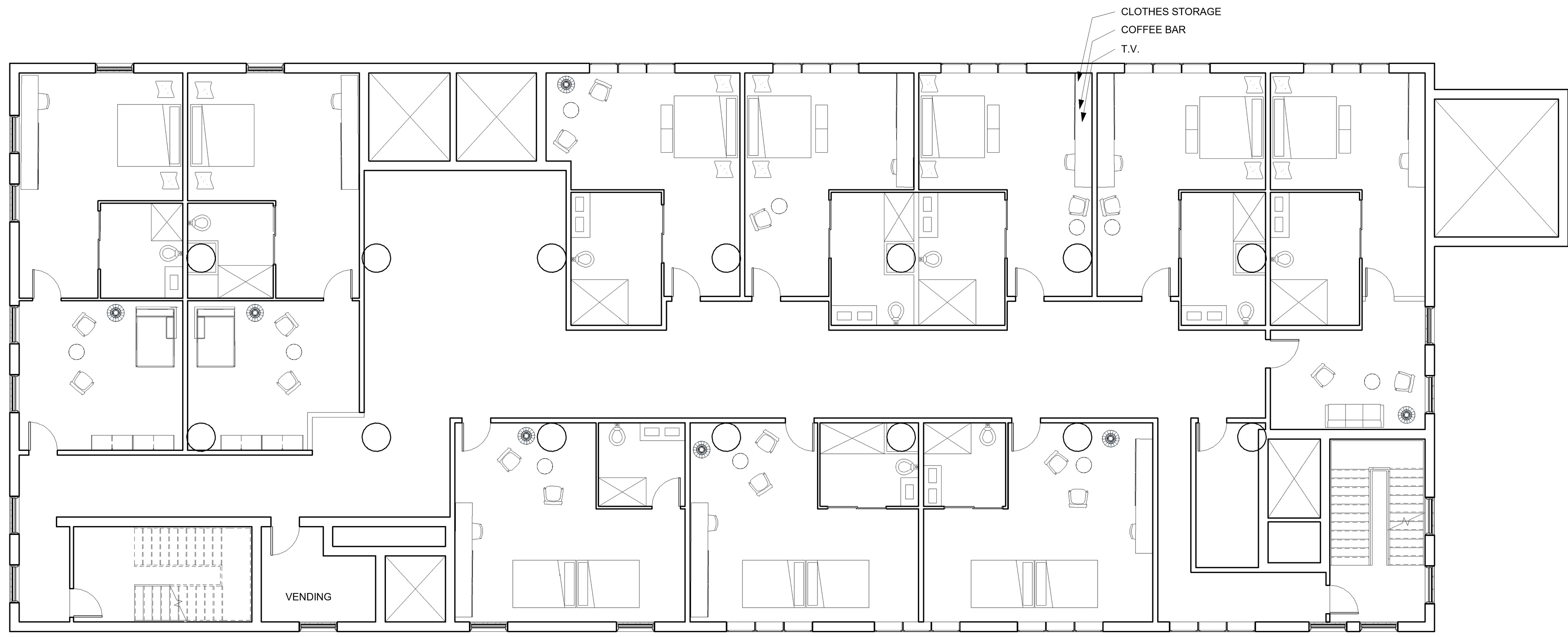
Suite Room Floor Plan
Suite Room Floor Plan
Back to Top